Increasing space for the whole family
Introduction
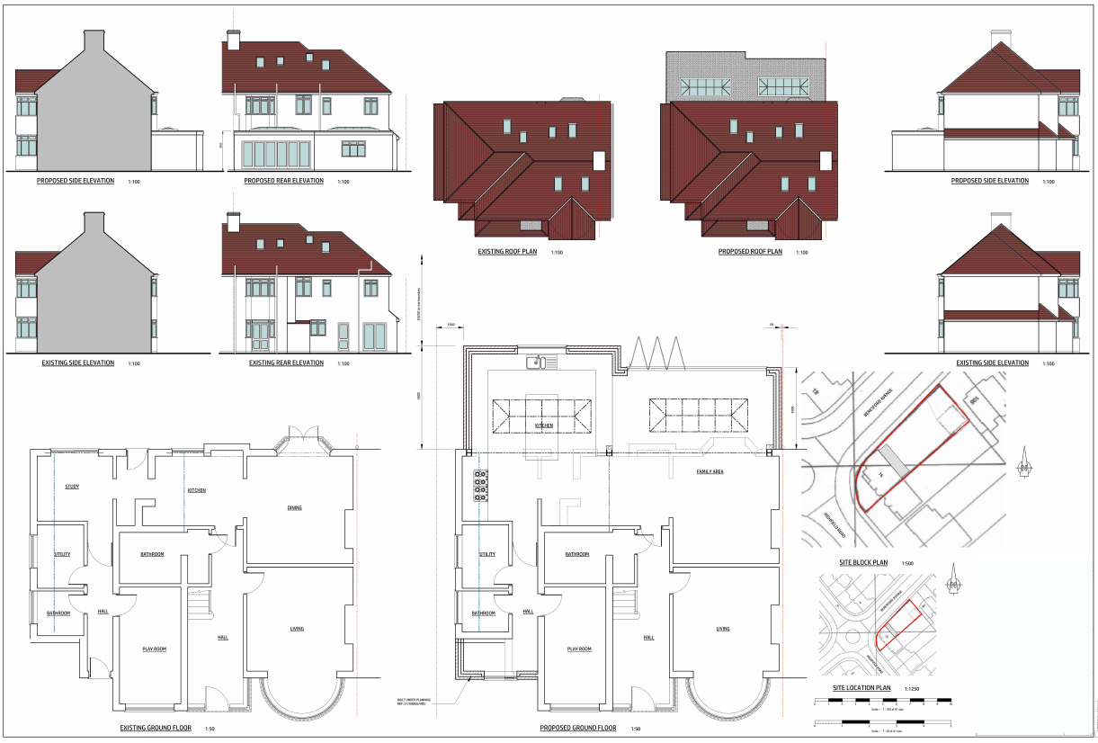
Peter and Harriet were living in Surbiton with their three children for a number of years, when they eventually decided to take the plunge and move from their rental property to their own home just round the corner. As a family, they were seeking more space and a home that they could grow into. The original brief when Peter and Harriet first approached us was to create a porch extension across the front of the house to accommodate a work space/study area for Harriet. Fast forward a year and they ended up with a lot more than the original brief!
The Story of Peter and Harriet
When Peter and Harriet first contacted us at the start of 2022 about their building requirements, it was with a simple brief to create some extra working from home space at the front of the house. Whilst they knew that to create their dream home would be a much bigger project than this, they were fairly tentative, as this was new territory for them. However, once they saw the team’s dedication to this smaller project, it was not long before they were checking our availability for later in the year, so that they could engage our services to build their rear extension.
The Challenge
Whilst Peter and Harriet were excited at the prospect of doing the main part of the build and getting rid of the existing kitchen, the reality was that they would be living and working in the house throughout the build and with three children to juggle, that was not going to be easy. Before any demolition could begin, a temporary kitchen had to be set up in the front room, that was to become their only living space for the next few months. Given these circumstances, the timeline of the project was the subject of much scrutiny, as Peter and Harriet needed to be assured that this build was not going to overrun.
Why Harriet and Peter Chose HICL
“We decided to proceed with HICL for our construction because of the high-quality finish of other example projects. The dedication that Andi gives to managing the build from start to finish is outstanding. We really appreciated his ideas and suggestions, which highlights his experience working on large projects like this. The time to complete the build was also an important factor for us, as we had to live in the house as the work was being carried out. Andi delivered on-time and to-budget.” - Peter
How HICL Responded
Knowing the situation that Peter and Harriet’s family were in, it was important for us to commit our full resources to this build. As a company, we do not believe in over committing ourselves to multiple large projects at the same time. We believe in offering each of our customers our full time and attention but in this case, it was vital in order to move the build along the timeline, avoiding unnecessary delays. As previously mentioned, it was essential that the living conditions were prioritised at the start of the build, so that the family were as comfortable as possible and had use of all their amenities. We then closed off the section to the rear of the house to keep noise and dirt to a minimum, as far as possible. Thanks to these measures, Peter and Harriet could see that they were at the forefront of our minds during this build, which helped them to relax into and trust the process.
The Results
Since starting work on Peter and Harriet’s home, they have reaped the benefits of not just more space but space that functions much better for their family’s way of life. Harriet now has a quiet office space away from the hustle and bustle of busy family life and the new, extended kitchen and dining area flows as one great, open plan space that is perfect for entertaining, something which they love to do!
Seeing the results with their own eyes and having lived through a smooth, trouble-free build, Peter turned his attention to their redundant outbuilding. Chatting to Andi about his vision and going to visit a local property with him to see this vision in practice, Peter has now decided to ask HICL to convert the outbuilding into a home gym. A repeat customer is clearly a satisfied customer.
If you have a building project that you are considering and would like to work with a team that put their customers need first, then do not hesitate to
get in touch today. We are here to offer free, no obligation advice and guidance for all elements of your build.
Like what you see? Reach out to our experienced team, located in Surbiton.






















